Solex-E-140

Das Schwabenhaus 4X4 Multi Wohn-System

Welche Kombi ist Ihre?

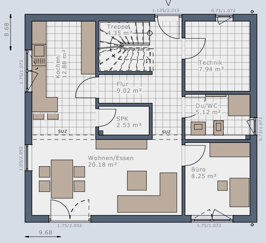
Erdgeschoss

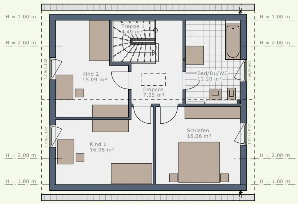
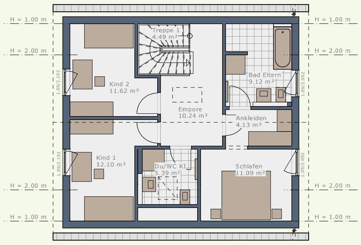
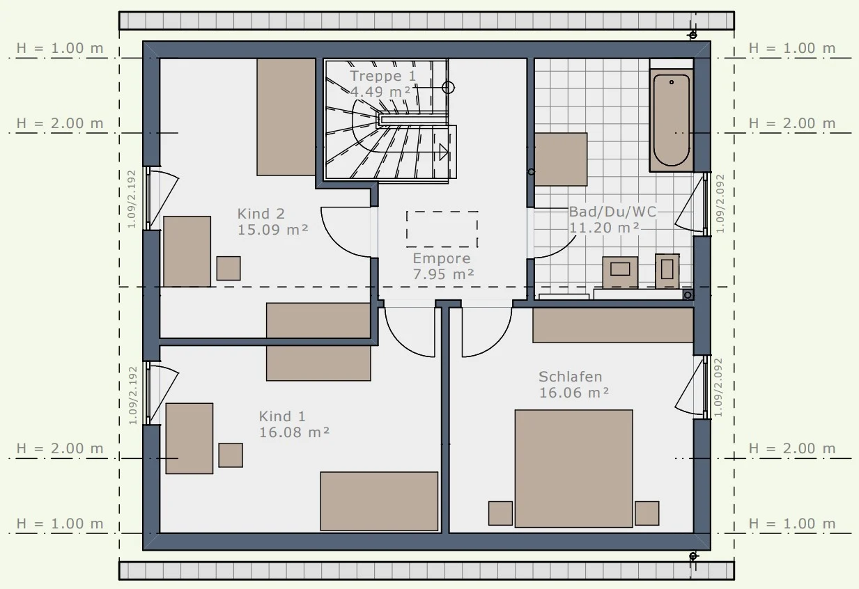
Obergeschoss

Haus-Informationen

Einfamilienhaus

mit 138,45 - 141,66 m²

Treppenart

25° Satteldach
Kniestock ab 1m

70,27 - 70,79 m²

68,18 - 70,87 m²

Nicht vorhanden

Architektur-Bauteile

Dachüberstand Style XL, Paket Fensterupgrade E2, Paket Dachfenster Sky-View E2, Übereck-Erker Wohnen, Terrassenüberdachung Essen, Eingangsüberdachung L-Design, Design-Fensterecke Kochen + Büro/Gast

Energiespar-Standard

Effizienzhaus 55, Effizienzhaus 40, Effizienzhaus 40-KFN+QNG

Ausbaustufen

Bau-Mit-Haus, Fast-Vollendet, Fast-Vollendet Plus,
Schlüsselfertig, Schlüsselfertig Plus

Mehr Individualität gewünscht? Kein Problem!

Es gibt viele Möglichkeiten. Nehmen Sie mit uns Kontakt auf!

Grundriss-Konzept

WohnraumPlus-Elemente

Architektur-Bauteile

Design-Pakete

Formular