Solex-E-150

Das Schwabenhaus 3X3 Multi Wohn-System

Welche Kombi ist Ihre?

Erdgeschoss

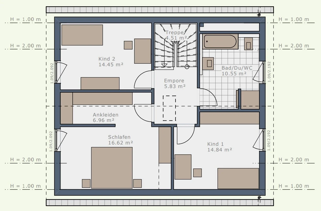
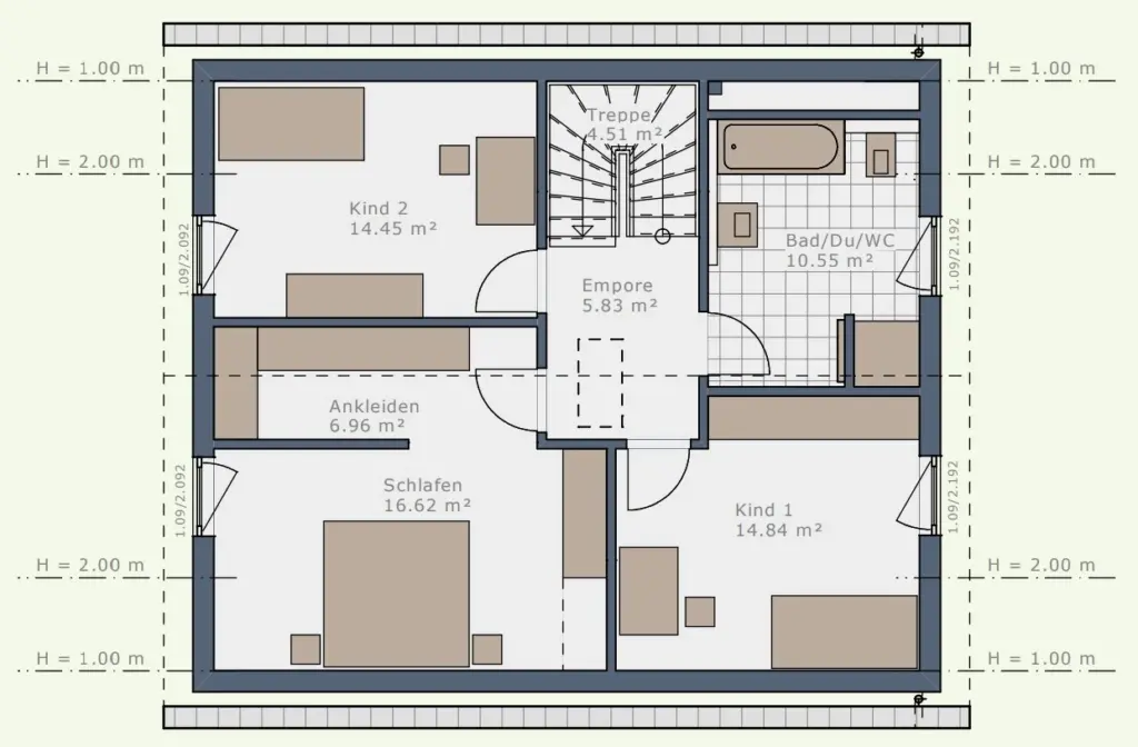
Obergeschoss

Haus-Informationen

Einfamilienhaus

mit 148,92 - 150,80 m²

Treppenart

25° Satteldach
Kniestock ab 1m

70,16 - 75,74 m²

73,76 - 75,06 m²

Nicht vorhanden

Architektur-Bauteile

Dachüberstand Style XL, Paket Fensterupgrade E2, Paket Dachfenster Sky-View E2, Übereck-Erker Wohnen, Terrassenüberdachung Essen, Eingangsüberdachung L-Design, Design-Fensterecke Kochen + Büro/Gast

Energiespar-Standard

Effizienzhaus 55, Effizienzhaus 40, Effizienzhaus 40-KFN+QNG

Ausbaustufen

Bau-Mit-Haus, Fast-Vollendet, Fast-Vollendet Plus,
Schlüsselfertig, Schlüsselfertig Plus

Mehr Individualität gewünscht? Kein Problem!

Es gibt viele Möglichkeiten. Nehmen Sie mit uns Kontakt auf!

Grundriss-Konzept

WohnraumPlus-Elemente

Architektur-Bauteile

Design-Pakete

Formular